Как получить ЕПД через портал «Госуслуги» и оплатить по нему услуги ЖКХ

Здравствуйте!
Каждый месяц большинство россиян получают счет-фактуру на оплату коммунальных услуг. Но в Москве, Московской области и некоторых других городах ЖКУ оплачиваются по единому платежному документу (ЕПД). Рассказываем, что это такое, как получить ЕПД и оплатить по нему коммуналку.
Что такое ЕПД

Единый платежный документ получают жители Москвы, Московской области и некоторых других регионов, которые решили перейти на ЕПД (например, он применяется в Тольятти). В 2019 году в Государственной Думе рассматривали законопроект, в котором предлагалось применять ЕПД по всей стране, но в итоге он был отклонен.
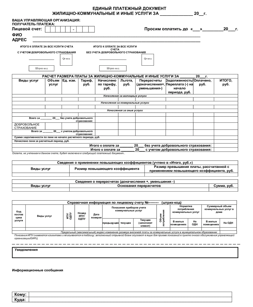
В платежном документе указывается адрес квартиры, ф. и. о. собственника, перечень коммунальных услуг, цифровой код плательщика, а также месяц, за который начислены платежи.

Так выглядит ЕПД, который получают жители Московской области
В ЕПД также включается сумма добровольного страхования квартиры. Стандартный список страхуемых рисков выглядит так:
- пожар;
- взрыв за пределами квартиры вне зависимости от причины;
- затопление квартиры;
- стихийные бедствия (ураган, смерч, сильный ветер и т. п.).
Страхуется, как правило, внутренняя отделка квартиры, инженерное оборудование (системы отопления, канализации, вентиляции, водоснабжения, газоснабжения, электропитания) и в некоторых случаях гражданская ответственность перед третьими лицами.
Сумма ежемесячного платежа чаще всего зависит от площади квартиры и включает в себя две составляющих:
- страхование отделки и оборудования квартиры;
- страхование гражданской ответственности.
В итоге к сумме за коммунальные платежи добавляется примерно 100–300 руб. в месяц. При этом заставить собственника страховать свою квартиру нельзя, страховку можно не оплачивать.
Как получить ЕПД
В Москве и Московской области единый платежный документ направляют по почте в срок до 15-го числа следующего месяца. Но можно не дожидаться этой даты и получить ЕПД самостоятельно. Например, житель Москвы может сделать это несколькими способами.
Через портал «Госуслуги». На главной странице выберите раздел «Услуги ЖКХ».

Если на главной странице портала «Госуслуги» ввести запрос «ЕПД», среди возможных вариантов выпадет строка «Услуги ЖКХ».
Затем на странице «Оплата ЖКХ» выберите среди поставщиков услуг «ЖКХ Москвы (ЕИРЦ)».

Не перепутайте с другими поставщиками услуг

Найти свой ЕПД можно и по адресу, но поиск через код плательщика быстрее. Посмотреть свой код можно в ЕПД за предыдущие месяцы
Через сайт mos.ru. Жители столицы могут получить ЕПД на сайте мэра Москвы ― местном аналоге общероссийских «Госуслуг». Нужно зайти в раздел «Услуги», указать код плательщика и месяц, за который нужен документ.
На портале информация подгружается из базы данных Единого расчетного центра

Через СМС и USSD-запрос. На портале mos.ru можно настроить автоматическую отправку ЕПД на электронную почту и в СМС. В последнем случае в сообщении будут указаны только месяц и сумма к оплате, а в электронном письме будет еще и сам ЕПД в формате pdf.
Чтобы получить сообщение, нужно отправить СМС на номер 7377 с текстом «Квартплата [код плательщика из ЕПД]».
Вместо СМС можно отправить USSD-запрос: наберите с телефона комбинацию *377*5*5*3# и в следующем диалоговом окне укажите код плательщика. В ответ придет сумма к оплате за расчетный месяц, без файла ЕПД.
Как оплатить услуги ЖКХ с помощью ЕПД

На портале «Госуслуги». При получении ЕПД в разделе «Оплата ЖКХ» можно сразу произвести оплату. После формирования документа останется только ввести реквизиты своей банковской карты и подтвердить платеж.
На портале mos.ru. При получении ЕПД на сайте мэра Москвы его можно там же и оплатить с любой банковской карты. Размер комиссии — 0,8% от суммы перевода.
В мобильном приложении банка. Для оплаты таким способом нужно будет указать код плательщика и период оплаты. Размер комиссии зависит от тарифов вашего банка.
В отделении банка или через терминал. В ЕПД есть штрих-код для оплаты, по нему без проблем можно оплатить документ через терминал или в отделении любого банка.
До новых встреч!